Traumhaus-Schweiz
Menu ▼
Home
Beschreibung
Lage
Verkauf
Kontakt
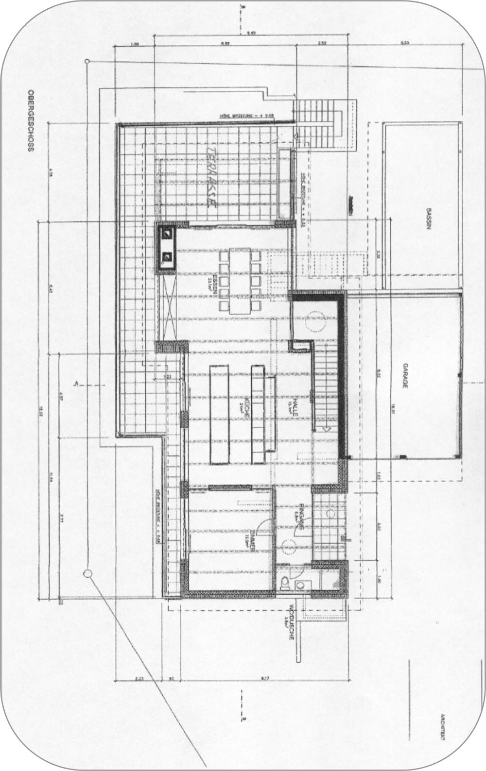
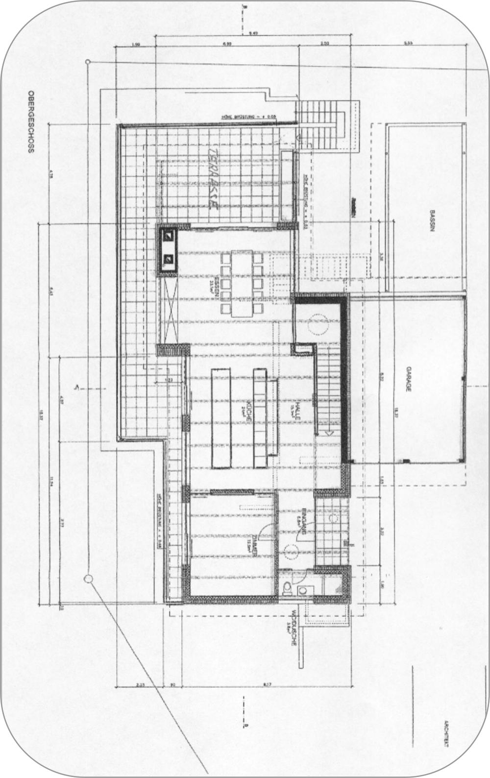
Pläne
Bilder
Erdgeschoss
Untergeschoss
Kellergeschoss
Situation/Flurkarte
Viel Platz für Sie
(vergrösserte Ansicht mit Klick)
© 2025 www.traumhaus-schweiz.ch